Obsah
dotazník obyvatel
dotazník obyvatel k tématu knihovny i návsi, hledání námětů na zlepšení
analýza
zmapování místa, vytvoření názoru na urbanismus a architekturu místa, inspirace
koncept
vypracování konceptu, možnosti řešení, zapracování nápadů obyvatel z dotazníku, konzultace s profesemi
připomínky k návrhu
představení konceptu vedení města a jeho obyvatelům, připomínky k návrhu
dopracování finálního návrhu
dopracování finálního návrhu návsi
odevzdání návrhu
odevzdání a představení finálního návrhu veřejnosti (možné online podobou)
komunikace s obyvateli
V rámci první fázi projektu proběhlo sbírání nápadů a připomínek ke stávající návsi od obyvatel Břeclavi. Online otazníku se zúčastnilo 38 lidí z toho 28 obyvatel Staré Břeclavi. Celkově místo hodnotí jako kulturní centrum obce, kde by rádi trávili více svého volného času a chtěli by místo posílit pořádáním více akcí posilující tradici folklóru (trhy a jiné gastronomické festivaly, košty, koncerty, taneční večery, řemeslné workshopy). Tyto akce by jistě podpořil multifunkční prostor, který je variabilní pro různé druhy akcí. Jako příjemné a kvalitní hodnotí kapličku, klidné prostředí, které v průběhu akce umí ožít. Nejvíce zmiňovaný nedostatek prostoru je rozpálenost povrchů, chybějící zeleň a stín, chybějící lavičky, nepořádek u kontejnerů a hospodské zahrádky. Chybí jim propojení občanské vybavenosti s návsí a rádi by obnovili charakter návsi.
Překvapilo nás i zájem o organizovat nejrůznější akce v prostoru návsi spolky i jednotlivci. Vytvoření příjemné pobytové návsi by semklo obyvatele Staré Břeclavi.
„Ráda bych někde zorganizovala workshopy šití a vyšívání krojů.“
„Při kulturních akcích bych uvítala možnost posedět venku resp. rozšířit kulturní akci do venkovního prostoru.“
„Nelíbí se mi část, kde je vyvýšené parkoviště, kvůli kterému je křižovatka velmi nepřehledná. Celý tento kout je špinavý, zašlý, odkryté popelnice nevzhledné, často je kolem nich nepořádek. Za velké negativu považuji málo zeleně a příliš velkou část plochy, která je vybetonována a vydlážděna, v létě je celý prostor příliš rozpálený.“
„Rozhodně mi vadí nepřehledná zatáčka blízko školy a obchodu. Chybí také bezpečná stezka pro cyklisty. Bezpečnost dětí, které tudy chodí do školky.“
„Myslím, že lidi v okolí by mohly zajímat více folklorní akce (ať už koncerty, tak např. výstava modrotisku).“
„Nestačí 1 knihovna ve městě? Prostory poskytnout kroužků pro děti (Břeclavánek, Skaut, Dobrovolní hasiči apod.). Nebo další prostor pro Lidovou školu umění čímž by se zvýšila dostupnost pro děti ze Staré Břeclavi.“
„Starobřeclavská náves na mě působí takovým zvláštním „vesnickým“ kouzlem. Současný koncept oceňuji mnohem více, než když bylo možné „po staru“ projíždět také mezi Obecní a kapličkou.“
„Chybí mi zde poštovní služba (alespoň schránka na dopisy). Mohlo by zde být více zeleně (vzrostlých stromů)“
analytická část
širší vztahy
Stará Břeclav je čtvrť Břeclavi, která má svébytnou identitu a vesnický charakter. Nachází se severně od centra města, u horního soutoku řeky Dyje a Staré Dyje. Struktura Staré Břeclavi je tvořena kompaktní zástavbou převážně rodinných domů. Centrum Staré Břeclavi je prostor u kulturního domu, základní školy Jana Noháče a jednoty Coop. Tomuto řešenému prostoru dominuje kaplička sv. Rocha se zvonicí přímo v ose ulic Školní a Generála Šimka. Prostor je nyní tvořen parkovací plochou v jihovýchodní části, předprostorem obchodu v jihozápadní části a severní stranu tvoří řada domů společně s kulturním domem, kde je provozována pobočka městské knihovny i restaurace se zahrádkou. Řešeným územím projíždí městská hromadná autobusová doprava a cyklotrasa Podluží. Plánuje se cyklotrasa na Podivín. Prostor je doplněn několika stromy.
širší vztahy Staré Břeclavi
stávající stav řešeného území
majetkoprávní vztahy
Jsou vyznačeny pozemky města Břeclav, bílé pozemky jsou soukromé. Návrh počítá s odkoupením pozemku 117/1 a s odstraněním objektů na tomto pozemku pro účel vytvoření nového kulturně komunitního centra se zázemím pobočky městské knihovny. Součástí návrhu je také napojení školy na náves pro bezpečnější cestu žáků na autobusovou zastávku v ulici Gen. Šimka. Toto řešení je zatím v jednání.
územní plán
Řešené území se nachází ve stabilizovaných plochách. Prostor je vymezen jako veřejné prostranství, na které navazují smíšená obytná funkce (S) a občanská vybavenost (OV). Prostor stávajícího parkoviště je označen jako smíšená obytná plocha, která lze přípustně využít jako veřejné prostranství. Návrh bude v souladu s územním plánem. Jsou plánována nová cyklistické napojení směr Podivín a do centra na stávající cyklotrasu. Také je zamýšlen nový most z ulice Zahradní přes řeku, který by dobře propojil Břeclav a Starou Břeclav na západní straně města. Severně od návsi jsou plochy vymezené k zastavění a tím se posílí návštěvnost návsi a občanské vybavenosti na ní. Řešené území je mimo hranici povodňového území Q100.
historie
Stará Břeclav (dříve Stará Břeclava, něm. Altenmarkt) byla do 20. let 20. století samostatnou obcí. Rozrůstající zástavbou se spojila s městem, ale i nyní si zachovává svůj charakter malé obce až vesnice. Počátky osídlení této lokality sahají do 6. století, již v té době bylo místo nynější návsi s kapličkou jednou z osad hradiska Pohansko. Postupem času se osídlení rozrůstalo. Velký rozmach zažila Břeclav díky vybudování železničnímu uzlu rakouské monarchie. Kaple sv. Rocha byla postavena v roce 1833 na ochranu před morem a cholerou, tu Břeclav postihla v 30. letech 19. století. Dříve měla kaplička bílou barvu a prostor na návsi byl posetý vápencovými kameny. Kaplička zaujímá dominantní pozici návsi i celé městské části a je kulturní památkou. Stará Břeclav byla vždy živým místem folklóru. Na návsi se konaly hody i slavnosti, stavěla se na ni májka a vycházelo se zde na pohřební průvody na hřbitov.
stávající stav návsi
Nyní na návsi funguje hospoda se zahrádkou otevřená do veřejného prostoru, kaplička zaujímá funkci vizuální dominanty, plocha parkoviště je ryze funkční, předprostor obchodu je sice zrekonstruován, ale chybí lavičky ve stínu. Mobiliář návsi není sjednocen a některý i poničen (zahrazovací sloupky). Celkově náves nepůsobí kompaktně. Nyní není možné zde pořádat tradiční akce, prostor tomu není uzpůsoben. Chybí stromy a vegetace, která by poskytla stín v letních měsících a pocitově zchladila rozpálené stávající betonové dlažby a asfaltové plochy. Pozitivem je, že se občanská vybavenost sdružuje na návsi. Na jednom místě se tak setkávají lidi jdoucí si nakoupit či jdoucí posedět na zahrádku hospody, žáci ze školy i cyklisti.
stávající podoba Boží muka za Starú Břeclavu | malérečka Petra Radkovičová ze starej
tradice
Podluží patřící k oblasti Slovácka skýtá silnou tradici folklóru. Kroje, slavnosti, průvody, cimbál, víno a slivovice jsou typickými prvky moravského folklóru a k Břeclavi prostě patří. Najdeme zde mnoho spolků a kroužků, které se o udržovaní tradic starají a jeho hodnotu posilují. Malované ornamenty nejsou jen výhradou skanzenů a stavebních památek. Tuto tradici typickou pro jižní Moravu najdeme i ve Staré Břeclavi. Téma barevných srdíček a jablíček sice již není tak časté jako kdysi, ale i přesto má Břeclav zručné malérečky, které svou prací ohromí návštěvníky města.
inspirace ve folklóru
Rádi bychom toto krásné řemeslo zvýraznili použitím na fasádu nového objektu pobočky knihovny, případně na jiné prvky či povrchy. Také z těchto ornamentů přejímáme název pro pobočku knihovny – „srdéčko“.
analýza urbanistického uspořádání
Varianty umístění objektu a jeho vliv na veřejný prostor. Do prostoru návsi přiléhají dva štíty domů, na které kdysi zástavba navazovala. Náves má tak celkem 4 nároží na jedné straně, na severní straně jasně čitelnou uliční frontu orientovanou na jih do veřejného prostoru.
koncept
Urbanistické zásady
Prostor je rozdělen na tři předprostory: kulturního domu, obchodu a knihovny. V celku utváří náves sjednocenou materiálem i výrazem. Náves je navržena v jedné rovině tak, aby uceloval prostor a působil jako náves.
Stanovili jsme si hlavní body návrhu:
_variabilita – přizpůsobení prostoru pro různé akce, flexibilita uspořádání nábytku dle potřeby
_otevřenost – kvalitní propojení veřejného prostoru návsi s občanskou vybaveností
_jednoduchost – čistá bílá barva jako primární barva s doplňujícím dřevem ve světlých barvách slouží jako podklad pro barevné ornamenty maléreček, jež symbolizují mezigenerační využití prostoru
Pobočka knihovny je skvěle umístěna do středu městské části – středu kultury místa. Dopravně je lokalita také skvěle napojena na městskou hromadnou dopravu. Vhodná pro knihovnu je blízkost školy pro napojení a lepší využití knihovny jako kulturně-komunitního centra. Otevření knihovny do veřejného prostoru návsi zdůrazní význam budovy. Vtáhne obyvatele i návštěvníky jdoucí kolem. Zároveň je velice důležitý předprostor knihovny.
situace konceptu tří prostorů
situace: technické sítě
situace
dopravní řešení
Jelikož je křižovatka ulic Školní a Gen. Šimka přímo situována na návsi, navrhujeme celou křižovatku zvednout a celý prostor dát do jedné roviny. Zavedena by byla maximální rychlost 30. Ke zklidnění dopravy a tím i bezpečnosti provozu přispívá i vhodný materiál – žulové kostky, které dopravu zpomalí. Prostor se výškově sjednotí. Místo stávajícího přechodu navrhujeme místo pro přecházení. V případě městských akcí se počítá s uzavřením křižovatky pro dopravu a náves bude využívána pouze pro chodce. Všechna parkovací místa (kromě pro invalidy) budou ze zatravňovací dlažby, kam budou spádovány zpevněné plochy. Zároveň stávající velikost parkovacích míst bude zvětšena na nynější normované rozměry. Stávající počet parkovacích míst je 12, u obchodu 7. Stání u obchodu jsou zachována, stejně jako počet podélných stání na ulici Gen. Šimka, parkování na návsi je umožněno pod stromy a je jich navrženo 16.
řešení zeleně
Každý předprostor je doplněn o nové stromy doplňující charakter místa. Stávající stromy (lípy, okrasné jabloně, akáty) budou doplněny druhy vhodné pro jihočeskou krajinu a mají perspektivitu života ve městě (akáty, javor, jasan, liliovník či jerlín). Upřednostňujeme stromy s vysokou korunou pro lepší vizuální kontakt na návsi. Stromořadí navrhujeme doplnit stejnými druhy. Bosket je navržen s doplněním vsakovacích malých průlehů. Zároveň u stromů je navržena rozvolněná dlažba místo mříží pod stromy. Tyto prostory mohou přirozeně zarůstat a podpořit biodiverzitu rostlin, které se tam v průběhu času uchytí.
Jelikož je území poměrně dost zasíťováno, na některých místech budou muset být stromy v květináči nebo udělat přeložku dané sítě.
Materiály povrchů
Na hlavní prostranství návsi a chodníky je použita přírodní kamenná dlažba. Okolí kapličky je zvýrazněno žulovými odseky v šedých a béžových barvách. Mozaika kolem kaple je doplněna třemi stromy do tvaru kříže – u nich se dlažba rozvolňuje, lavičkami bez opěradel volně umístěné v prostoru. Pokud to stavba dovolí, může být u nového dominantního stromu ponechána stávající vegetace kvetoucích keřů. Jelikož je náves v jedné rovině, je nutné z hlediska bezpečnosti rozlišit vozovku od chodníku materiálově či barevně. Pro část silnice, kde jezdí MHD, a případné vjezdy jsou zvoleny šedé žulové kostky. Pro druhou část silnice mezi obchodem a hospodou je zvolen tmavší odstín dlažby chodníků. Pro parkovací místa je použitá betonová zatravňovací dlažba, pruhy jsou ze stejné dlažby jen bez mezer pro trávu.
3 místa a 3 průhledy
Dominantou prostoru je bezpochyby kaplička. K ní vedou tři cesty – tři osy – tři průhledy. Zbytek návsi je rozdělen na tři plácky – předprostory občanské vybavenosti. Prostory na návsi slouží jako místa setkávání a místa k pobytu. Každý předprostor má trochu jinou charakteristiku, aby si návštěvník mohl vybrat to své. U knihovny je důraz na klidné stinné prostředí s možností výstav, před kulturním domem a hospodou je plocha uzpůsobena jako rozptylová při obecních a jiných akcí, předprostor u obchodu by měl fungovat jako tržní místo.
Modrozelená infrastruktura
1/ vegetace ve veřejném prostoru
Dlážděné plochy náměstí a návsí se potýkají s problémem přehřívání, které je hlavní příčinou, proč náves obyvatelé nevyužívají. Návrh pracuje s vytvářením stinných zón pod nově vysázenými stromy a zpříjemňuje tak pobyt na návsi. Stromy jsou navrženy s vysoko nasazenou korunou a jsou umístěny na místech, kde nevadí hlavním urbanistickým průhledům na kapli. Některé stromy jsou navrženy do květináčů, protože kvůli zasazení stromů do země by se musely dělat přeložky sítí, které jsou nákladnější než umístění stromů v nádobách. Stromy v květináči budou menšího vzrůstu – limitovány velikostí květináče, ale pořád budou zpříjemňujícím prvkem prostoru. U stromů zasazených v zemi je rozvolněná dlažba, která funguje jako zasakovací místo povrchového odvodnění zpevněných ploch. V místě bosketu jsou u stromů a mezi parkovacími místy vytvořeny malé průlehy, které jsou doplněny vhodnou vegetací – např. břízky.
2/ využití dešťové vody
Břeclav se nachází na území fluvizemě a černice typické pro nivy řek. Dáváme přednost povrchovému zasakování. Dešťová voda je z pevněných povrchů spádována přímo ke stromům. V případě, že by se v dalších fází zjistilo, že tyto plochy nestačí pro zásak, bude navrženo podzemní zasakovací zařízení dle geologických podmínek. Proto doporučujeme v dalších fázích pracovat s místními hydrogeology. Prostor je navíc doplněn o mlžiště, které si užijí i děti na hru. Mlžiště funguje zároveň jako příležitostné brouzdaliště, kam je svedena povrchovými kanály dešťová voda. V případě, že jí je moc, je svedena ke stromům. Celý princip práce s dešťovou vodou spočívá ve zpomalení vody a povrchovém zpracovávání dešťové vody.
3/ vegetační střecha knihovny
Je navržena vegetační střecha se suchomilnou zelení jako základ, ta je méně náročná na údržbu. Skládá se z rostlin typu: rozchodníky (rod Sedum) + netřesky (rod Sempervivum) + suchomilné trávy. Případně může být střecha doplněna skupinou suchomilných trvalek: hvozdík (dianthus), rožec, jestřábník (kvete 5-10), třezalka, levandule, dobromysl. Zavlažování je řešeno pomocí děšťové vody, která je pro rostliny nejvhodnější – není tak tvrdá a studená jako z vodovodního řádu. Je ale nutná kombinace s jiným zdrojem vody a vyžaduje mechanické čištění. Je navrženo i odvodňovací zařízení, které přebytečnou vodu odvádí pryč ze střechy. Zelená střecha zadržuje vodu, zlepšuje klima, zadržuje prach a toxické částice z městských ulic. Poskytuje čtenáři klidné a příjemné místo – čtení v kvítí.
Mobiliář
Materiál pro mobiliář volíme kombinaci oblíbeného antracitového kovu s dřevěnými prvky. Dřevo je použito především na lavičky – sedací plochy i u laviček u zastávek pro příjemnější sezení. Je možno doplnit mobiliář o barvené prvky dle barev města: zelená/žlutá/modrá. Takto zvolený mobiliář se pak může stát jednotným městským mobiliářem.
Trhy
Z dotazníků vyplynul zájem o pořádání a obnovení trhů a slavností na návsi. K tomu účelu jsou navrženy variabilní stánky, které mohou sloužit jako lavička i místo pro prodej. Na obrázku je jen pro inspiraci použit typ z Tylového náměstí v Praze – obrázky stánků slouží jako uvedení principu pro inspiraci. Konstrukci doporučujeme vyprojektovat zvlášť speciálně pro obec Břeclav, aby se tak trhové stánky staly typickým prvkem Břeclavi. Mohou se tak objevit na více místech. Opět by konstrukce měla být antracitová kovová doplněna o dřevěné prvky ladící s ostatním mobiliářem. Zastřešení stánku může být provedeno v podobě markýzy (viz. obr.) v barvách města Břeclavi (žlutá, zelená, modrá – tři stánky) nebo v podobě bílých plachet.
knihovny dnes
Jsou knihy v dnešním digitálním světě odepsané? Fungují dnešní knihovny jinak? Kam se budou vyvíjet?
Lidská historie dá se říci začala právě sbíráním a zaznamenáváním informací a důležitých událostí. Od hlíněných destiček, přes rákosové papyrusy, vellumy (upravená kůže savců používána k psaní) jsme se dopracovali k opravdovému papíru; od ručně psaných svitků ke Gutenbergovému knihtisku; od soukromých knihovnických sbírek k veřejným městským knihovnám. Změny nastávají neustále a v zrychlujícím se tempu. Příchod nových informačních technologií ve 20. století otestoval přizpůsobivost knihoven a testuje ji pořád. Vynálezem kazet či kompaktních disků, zdokonalování počítačové techniky, zavedení systému propojených počítačových sítí postupně zjednodušovalo přístup k informacím. Knihovny tak rozšířili svůj rejstřík služeb pro uživatele (digitalizování knih, zjednodušené vyhledávání, přístup k databázi apod.).
knihovna jako místo setkávání
Dnes je hledání informací mnohem jednodušší a dostupnější, proto se role knihovny i knihovníků rychle mění. Knihovna už není jediný zdroj informací. Transformuje se na místa k produktivní práci, místa setkávání lidí, místa sdílení informací. Studenti chtějí místo na společné učení, firmy podnikatelské inkubátory, rodiče výuková a komunitní centra. Vzdělávací funkce v knihovnách bude trvat stále. Lidé se stále budou obracet na knihovny a knihovníky, aby je spojili se správnými online nástroji, které potřebují k provedení svého výzkumu, a taky aby měli ověřeny zdroj informací.
„Jedinou věcí, kterou musíte znát, je umístění knihovny.“ Albert Einstein
IFLA (Mezinárodní federace knihovnických asociací) se zabývá tématem dnešních knihoven, zahájila globální diskuzi o trendech a pomáhá knihovníkům lépe reagovat na změny v tomto oboru. V dokumentu koncepce rozvoje knihoven stanovila 8 priorit pro zkvalitnění služeb i technického vybavení knihoven, vedení knihoven jako centra vzdělávání, kultury a komunity i podpoření vědy a výzkumu. Tyto zásady se samozřejmě propisují i do architektonického řešení a my se je snažíme návrhem podporovat.
„Veřejná knihovna je místní branou do světa vědomostí a základním předpokladem celoživotního vzdělávání, nezávislého rozhodování a kulturního
rozvoje jednotlivců i společenských skupin.“
(Manifest IFLA/UNESCO o veřejných knihovnách, 1994)
Pobočka městské knihovny
centrum Staré Břeclavi - srdce Staré Břeclavi
Centrum
Pobočka knihovny je důležitou občanskou vybaveností městské části. Dnes ovšem knihovny slouží jako víceúčelová centra vzdělání a informací, proto chceme celou strukturu uzpůsobit co nejvíce variabilně. Tvoříme místo pro scházení lidí, kteří budou sdílet své zkušenosti, ne sklad knih. Objekt pobočky knihovny s dalšími doplňujícími funkcemi nazýváme kulturně-komunitní centrum “Srdéčko”.
„Srdéčko“
Princip budovy je založen na měnících se věcech, měnícím se okolí a pohybujících se lidí okolo. Prvky stavby symbolizují také určitý pohyb a to v použití posuvných panelů na fasádě, které připomínají i posuny regálů uvnitř dispozice knihovny. Tak jak se může přetvořit vnitřek podle aktuálního využití, může se přetvořit i fasáda a tím pokaždé působit do veřejného prostoru jinak. Severní strana budovy je téměř celá prosklená se skrytými rámy, zvýrazněný je jeden rám, který umožňuje otevřít část prosklené stěny do návsi. Návštěvník má i možnost jít ven posedět s knihou na střechu budovy. Střecha je uzpůsobena jako částečně pochozí a z části jako vegetační střecha. Celá střecha je kryta pergolou porostlou popínavou vegetací – především vínem. Přístup na střechu vede z ulice Školní, ale může být i uzavřena pouze pro účely knihovny.
Grafika srdéček je použita na atiku budovy a může být použita i v interiéru na koberec v herně pro děti nebo na výdejním a poštovním pultu.
Principy
1/ Variabilita – Celá knihovna je založena na posuvných regálech, které se mohou sesunout na stranu a vytvořit tak prostor pro větší akce. Zároveň umožňují seskupení regálů v prostoru a vytvoří tak rozdělené menší prostory. Nábytek volně umístěný je mobilní, hrabátka a jiné regály na časopisy, mapy apod. jsou na kolečkách a dají se tak snadno odklidit. Sedací nábytek je tvořen z kulatých křesílek pro dospělé, posedové krychle pro děti a sedací bobky, které jsou vhodné i do venkovního prostoru – dvůr a náves. Od vstupu a pultů je prostor knihovny oddělen mobilní příčkou, která umožní zavřít knihovnu a objekt může fungovat jen jako pošta.
2/ Otevřenost – Chceme lákat veřejnost, aby se bavila v prostoru před i v knihovně. Hlavním výrazným prvkem je celoskleněná stěna, která umožňuje nahlédnutí dovnitř i v případě mimo otevírací dobu knihovny. Celá stavba by měla fungovat celoročně, pro více funkcí a více dní v týdnu (nejen jako knihovna).
3/ Barevnost – Jako primární barvu jsme zvolili bílou. Ta je doplněna dřevěnými prvky na fasádě i v interiéru, aby dodala domácké prostředí. Upřednostněna je kombinace barev bílá- barva dřeva-červená. U herny pro děti je samozřejmě kombinace barev a tvarů vítána. Posedové bobky, které jsou určeny i do venkovního prostoru jsou v kombinaci barev města (žlutá – zelená – modrá).
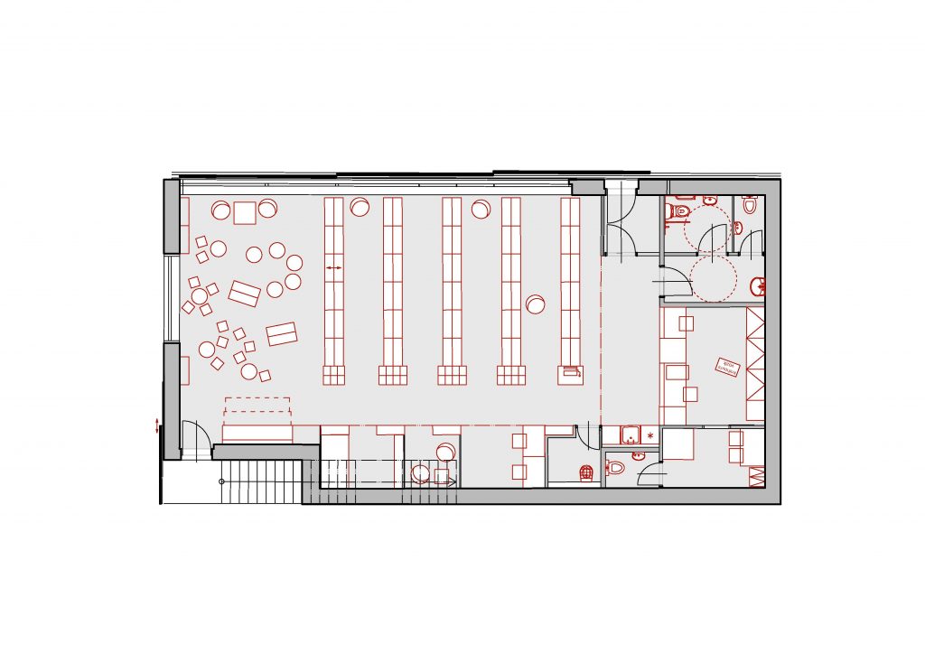
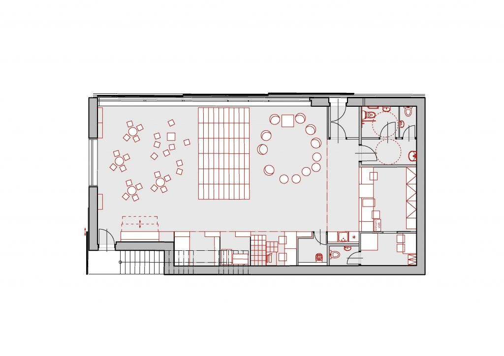
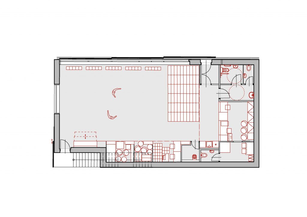
Multifunkční prostor a jeho náplň
Nyní knihovna funguje 2 dny v týdnu (přes prázdniny pouze 1 den v týdnu). Přijde nám škoda stavět novou budovu, aby se využívala tak málo. I proto přistupujeme k návrhu tak, aby se budova dala využívat denně. Interiér Srdéčka je uzpůsoben tak, aby bylo možné prostor knihovny přetvořit. Objekt slouží především jako knihovna a pošta. Je ale uzpůsobena a otevřena pro jiné činnosti: dětská herna, divadlo, přednášky, besedy, kurzy, vnitřní i venkovní výstavy, možnost stálé expozice, malé koncerty, akce pro děti, zkušebna divadelních či hudebních představení, prostor na cvičení (jóga/moderní tanec). Jsou tedy dány tři základní provozy: knihovna (otevřena celá budova), pošta (knihovní část uzavřena, zpřístupněn pouze hlavní vstup a poštovní pult), pronájem (pulty pošty a knihovny jsou uzavřeny posuvnou příčkou, regály sesunuty na stranu, zatáhnuté roletou a zamknuté, přístup do prostoru může být ze zadního vchodu od schodiště).
ulička pro žáky základní školy Jana Noháče - zadní vstup brankou určen pouze pro žáky, ulička ústí u knihovny s posezením, boxem na uložení balíků
Půdorysné uspořádání
Víceúčelové využití budovy si většinou žádá jednoduché řešení. Budovou definujeme část návsi a vytváříme tím čelo návsi další důležitou občanskou vybaveností. Interiér je rozdělen na dvě části: část pro návštěvníky a zázemí. Multifunkční prostor je variabilní díky posuvným knižním regálů, které se dají seskupovat na jedno místo a vytvořit tím velkou plochu pro větší akce nebo seskupit tak, aby vytvořili „místnosti“ mezi sebou. V normálním režimu knihovny jsou roztáhlé a všechny knihy přístupné. Součástí prostoru je sedací mobilní nábytek. Herna pro děti je situována do zadní části objektu – do ulice Školská, kde je nejvíce světla a je tam místo pro děti nejvíce příjemné. Dále jsou v interiéru navrženy pokojíčky, které slouží jako studovna, čítárna i samostatná klidová zóna.
Jsou navrženy regály pro 10 000 svazků (27 nižších pro děti, 34 vysokých pro dospělé).
Fasáda
Fasáda je tvořena z posuvných fasádních panelů, které reflektují variabilitu a posuvné regály uvnitř ven na fasádu. Panely jsou tvořeny dřevěným laťováním. Ty mají mezi sebou mezery, aby i při posunu panelů po celé délce šlo vidět lehce dovnitř. Při provozu knihovny panely budou zcela odsunuty a fasáda se stane otevřenou – zve k návštěvě. Dny, kdy bude fungovat jen pošta, může být odsunut pouze panel u vstupu. Při různých akcí se panely dosáhne případného požadovaného stínění a fasáda může každý den vypadat jinak. Když si tak někdo pronajme prostory knihovny, může mít díky panelům na fasádě větší soukromí. Zároveň laťování vytváří zajímavou interakci osob ve veřejném prostoru a uvnitř knihovny ve večerních hodinách, kdy se vevnitř svítí. Dřevěné laťování je zopakováno i na střešní pergole a poskytuje lehký stín. Latě jsou zarovnány v jedné linii s horním pevným laťováním.
Součástí fasády k ulici Školské je opět jeden posuvný fasádní panel, který otvírá vstup na pochozí střechu knihovny. Přístup na střechu je umožněn jak z knihovny tak z veřejného prostoru – ulice Školní. Když je otevřena knihovna, mohou být otevřeny dveře v knihovně, fasádní panel zavřen a tak se může návštěvník v klidu posadit s knihou na střechu a číst si. Nebo může být fasádní panel otevřen a střecha tak bude veřejně přístupná. Fasádní panel také prostor na střeše zabezpečuje v noci a funguje jako uzamykatelná branka.
pohled z veřejné vegetační střechy na kapličku a náměstí
pohled ke štítu školy - ten je opatřen lanky pro pnoucí rostliny, zábradlí je řešeno ocelovými lanky mezi sloupy pergoly
řez A
řez B